edificio vicente kovacevic ii

Universidad central de Chile, santiago, chile

 2012

 
 

 

 

El proyecto para el nuevo edificio de la Facultad de Ciencias de la Educación y la Facultad de Ciencias Políticas y Administración Pública de la Universidad Central de Chile es parte del proceso de consolidación de esta universidad en el centro de Santiago, en el área de renovación urbana generada por el ensanche de la Av. Santa Isabel, con fuertes compromisos contextuales como remate del barrio Cívico a través del eje Peatonal Bulnes y la presencia protagónica de la Iglesia de los Sacramentinos en el Parque Almagro.

Las principales estrategias frente a las variables del contexto y la necesaria vinculación con el edificio existente de las Facultades de Arquitectura e Ingeniería fueron, por un lado, diseñar un edificio contemporáneo con carácter propio y autonomía de funcionamiento que, respetando la línea, materialidad y altura de las edificaciones del sector, configure un conjunto armónico de escala monumental e identidad institucional en torno al Parque Almagro, y por otro, organizar un sistema de espacios exteriores y programas de uso público que logre revitalizar la plaza hundida existente al interior de la manzana como lugar de reuniones y espacio representativo de la facultades que la habitan.

Proyectado como un volumen compacto en forma de “C”, el edificio se resuelve hermético hacia el perímetro vial y abierto al oriente, incorporando visualmente a través de su fachada acristalada las preexistencias, vistas hacia el paisaje cordillerano y la Iglesia de los Sacramentinos, hacia el interior del patio cubierto de seis pisos de altura. Este espacio central articula la vida universitaria de sus dos primeros pisos destinados a actividades de extensión y difusión (auditorios, sala de exposiciones y biblioteca) con los recintos docentes ubicados en los demás niveles a través de puentes y escaleras que lo atraviesan. Es un espacio de aproximación de sus habitantes (futuros administradores públicos, cientistas políticos y profesores) al ámbito público, al espacio común de escala urbana.

 

planos

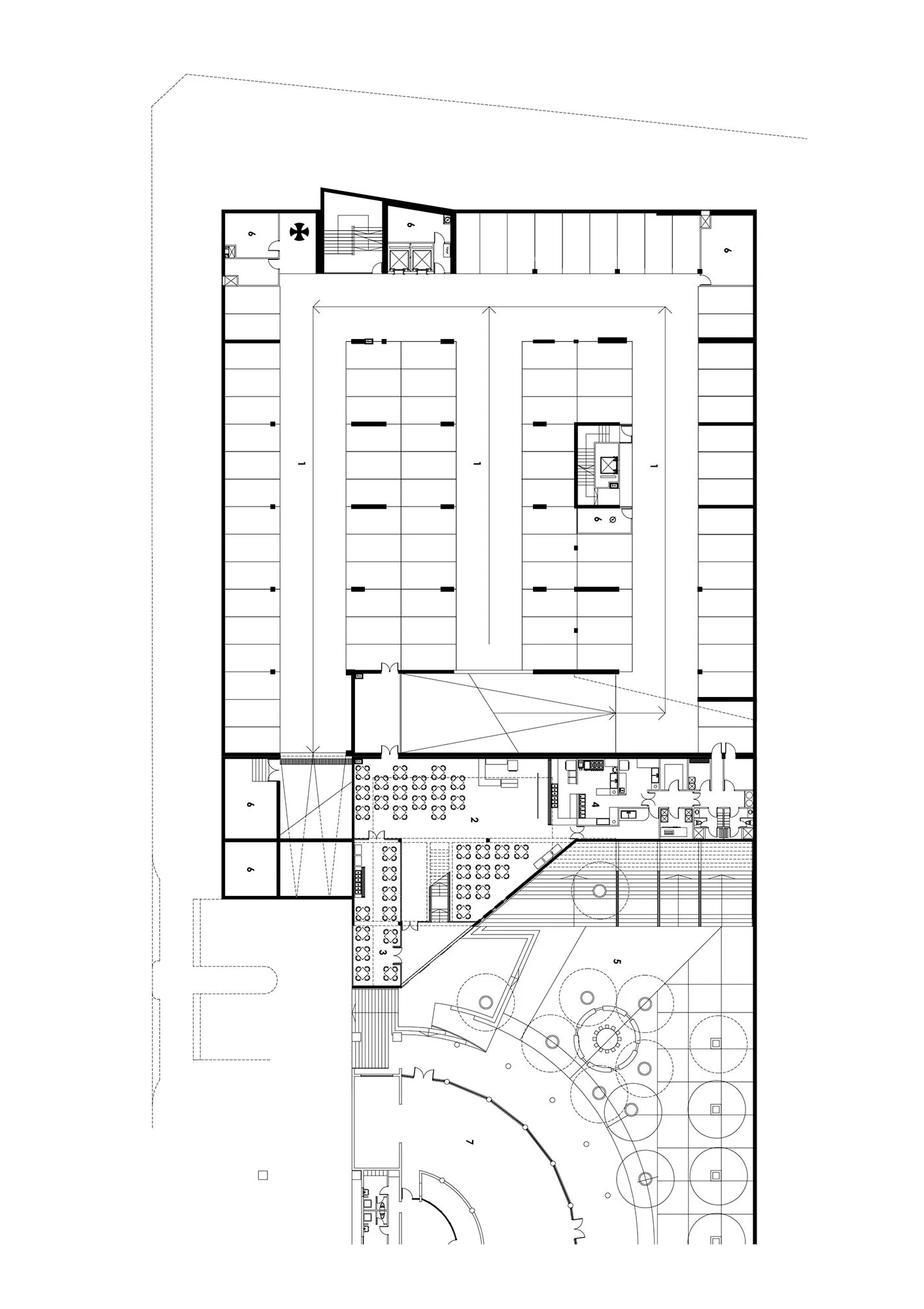
Planta Primer Piso

Planta Segundo Piso

Elevaciones Poniente y Oriente

 


FICHA TÉCNICA

ARQUITECTOS Jorge Marsino P. / María Inés Buzzoni G. / Viviane Oliger G. / Humberto Eliash D.
ARQUITECTOS COLABORADORES Carolina Araneda C. / Alain Champion M. / Cristian Contreras T. / Alejandro Rojas D. / Jaime Fuentes D.
AÑO DE PROYECTO 2002 - 03
AÑO DE CONSTRUCCIÓN 2003 - 04
SUPERFICIE DE TERRENO 3.329,15 m2.
SUPERFICIE CONSTRUIDA 16.673,28 m2.
UBICACIÓN Av. Santa Isabel 1278, Santiago de Chile.
CLIENTE Universidad Central.

 

ESPECIALISTAS
PROYECTO CÁLCULO Crl. Ingenieros / Sergio Raby P. / Patricio Lopez V.
PROYECTO ILUMINACIÓN Oriana Ponzini Arquitecto.
PROYECTO ELÉCTRICO Tecnoservicio | Fernando Elmes.
INSTALACIONES SANITARIAS Cgv Proyectos | Ciro Gonzalez V.
CLIMA Y EXTRACCIÓN 20º Grados | Manuel Gutierrez.
PAISAJISMO Consultora Mupahue | Mónica Palma.
EXTRACCIÓN DE BASURAS Packer | Cecilia Melo.
MECÁNICA DE SUELOS Issa Kort K.
FOTOGRAFÍA | Guy Wenborne.
EMPRESA CONSTRUCTORA SALFA Construcción S.A. / Angel Chavarri / Rodrigo Claro