facultad de economía y negocios

Universidad de Chile, santiago

 2011

 
 

 

 

El encargo

El concurso de Anteproyectos para construir el nuevo edificio de la Facultad de Economía y Negocios de la Universidad de Chile surge como respuesta a la necesidad de dar cabida las nuevas oficinas de académicos que demanda la actual estructura curricular, en donde el nuevo edificio debía representar y ser parte del constante fomento a la investigación, emprendimiento e innovación de FEN.

Se emplaza en el centro de Santiago, en la intersección de Av. Diagonal Paraguay y Av. Vicuña Mackenna, formando parte del complejo universitario Campus Andrés Bello de la Universidad de Chile.

La apuesta de la facultad, que participó en el encargo y desarrollo del proyecto, era que los académicos de la FEN debían contar con espacios de trabajo de primer nivel, análogos a los que se sitúan, por ejemplo,  en Nueva Las Condes o El Golf. 

 

la universidad se renueva

El encargo era proyectar un nuevo estándar para la Universidad, el nuevo el estándar de la FEN. El nuevo edificio hace que la facultad se renueve y que cambie de categoría, generando que la Universidad  de Chile se transforme en plena crisis de la educación.

 

la estrategia

Las principales estrategias frente al contexto y la relación y vinculación con los edificios existentes que se emplazan contiguos al terreno del proyecto, como el Tecnoaulas de la FEN y Diseño de la FAU, fue diseñar un edificio contemporáneo de baja altura, con carácter propio y autonomía funcional que, respetando la línea y materialidad de las edificaciones del sector, configure un proyecto a escala del campus  y proyecte identidad institucional.

 

Proyecto

Dentro del terreno comprimido se proyecta un edificio con forma de “Z”, que busca el mayor perímetro de exposición para lograr el máximo de iluminación y ventilación natural para las oficinas  proyectadas. La planta acoge situaciones que permitan distintas configuraciones espaciales en el tiempo, donde la forma arquitectónica perdure frente a la organización programática.

El edificio se resuelve abierto hacia el exterior en todas sus caras, con una estructura pensada como exoesqueleto, es decir, llevada hacia el exterior, permitiendo así una  planta libre que asegure la flexibilidad en su uso.

El proyecto se conecta peatonalmente con el edificio contiguo a nivel zócalo y primer piso por medio del patio resultante de la forma convexa del edificio, generando un anfiteatro como espacio de reunión y representación dentro del campus.

La cubierta parcialmente habitable incorpora las vistas hacia el parque San Borja, el campus y en una escala más lejana el paisaje del Cerro San Cristóbal.

 

el resultado

Finalmente, el resultado formal y visual del edificio es el objetivo de lo que denominamos desarrollo proyectual por etapas, resolviendo en la primera etapa de proyecto los requerimientos de “datos duros” bajo un partido general claro (normativa, superficie, presupuesto, etc.),  y en la segunda,  se incorporan variables arquitectónicas que amplíen su registro (estructura, recorrido, materialidad, sistema constructivo, etc.). Así, entre el anteproyecto adjudicado y el proyecto construido ha sucedido una transformación proyectual que pensamos agregará valor al edificio. Transitando entre la complejidad formal-espacial y la simplicidad funcional-programático.

La propuesta es una apuesta a la innovación, va mas allá de la obra (encargo/presupuesto) y cambia la imagen de la FEN con un diseño diferenciador y transformador (valor agregado) de manera innovadora (forma en “z”, “exo-estructura” y sofisticación material) ,lo que le permite a la  FEN, hacer que su edificio sea parte y reflejo de su constante fomento a la investigación, emprendimiento e innovación.


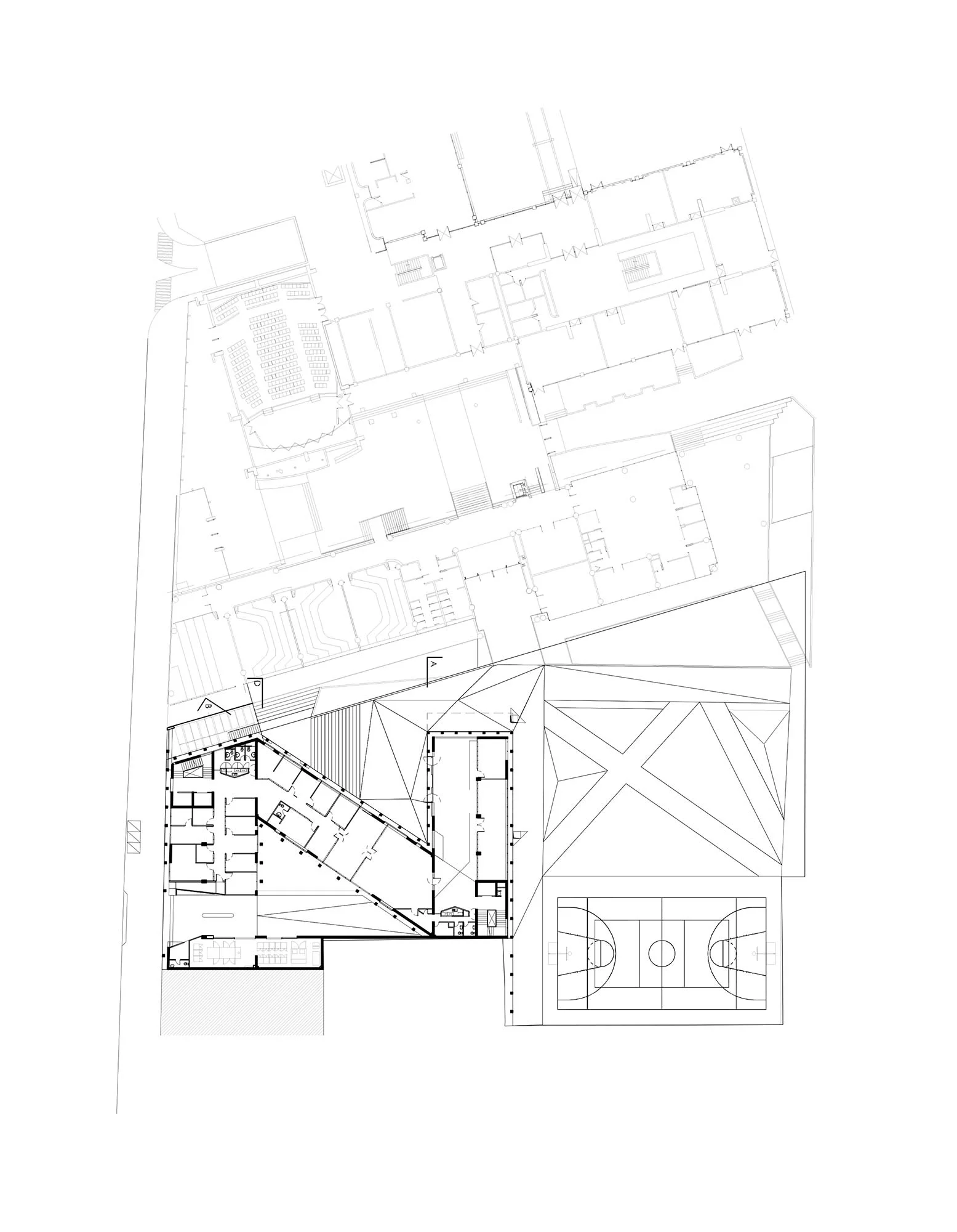
Planta Primer Piso

Planta Segundo Piso

Elevaciones Posterior y Principal

 


FICHA TÉCNICA

ARQUITECTOS Jorge Marsino P. / María Inés Buzzoni G. / Claudio Santander L.
ARQUITECTOS COLABORADORES Francisca Valenzuela R., Alfonso Kunstmann M., Fernando Tocornal C., Oscar Leiva D.
AÑO DE PROYECTO 2007 - 08
AÑO DE CONSTRUCCIÓN 2009 - 11
SUPERFICIE DE TERRENO 3.670 m2.
SUPERFICIE CONSTRUIDA 8.011,60 m2
UBICACIÓN Campus Andrés Bello, Av. Diagonal Paraguay n°79
Comuna de Santiago, Región Metropolitana, Chile.
CLIENTE Universidad de Chile, Banco del Estado.

 

ESPECIALISTAS
PROYECTO CÁLCULO Enzo Valladares P.
PROYECTO ILUMINACION Oriana Ponzini G-H.
PROYECTO ELÉCTRICO Proacom Ltda.
FOTOGRAFÍA | Aryeh Kornfeld.
EMPRESA CONSTRUCTORA Bravo e Izquierdo Ltda.
INSPECCIÓN TÉCNICA Asesorías Prigan Ltda.