edificio amberes norte

CAMPUS PEDRO DE VALDIVIA, Universidad finis terrae, santiago, chile

 2007

 
 

CAMPUS PEDRO DE VALDIVIA  |  PROVIDENCIA 

El primer encargo de la Universidad Finis Terrae, el año 2000, consistió en generar un nuevo edificio en la esquina de Av. Pedro de Valdivia y Pocuro, que respondiera al creciente aumento de matrículas que venía experimentando la universidad y que la obligaba a dar un salto cualitativo desde la ocupación de viviendas adecuadas al uso educacional a un edificio que respondiera a las condiciones apropiadas a la docencia.

En esta primera intervención, se propuso generar una imagen de edificación pública en un volumen de cuatro pisos de altura que intentara consolidar el perfil institucional de edificaciones de media altura que caracteriza a la Av. Pedro de Valdivia, oponiéndose como primera decisión proyectual a la tendencia comercial de edificar torres según lo que permitía la ordenanza local vigente.

Esta unidad, que servirá de modelo a los futuros edificios, se resuelve de manera contemporánea siguiendo la clave compositiva clásica de base, cuerpo y remate presentes en la casona existente, desde una visión moderna que busca establecer una relación dialéctica entre lo existente y lo nuevo como una imagen renovada de modernidad del proyecto académico que lo sustenta.

Posteriormente, el año 2003, surge una iniciativa impulsada por las autoridades de la Universidad de desarrollar un Plan Maestro para el Campus Pedro de Valdivia, que permitiera consolidar la presencia de la universidad e intentara recomponer y jerarquizar la confusa espacialidad y funcionalidad de las circulaciones entre las edificaciones preexistentes al interior de la manzana.

La propuesta desarrollada consistió en jerarquizar y poner en valor el volumen de la antigua Casa Vial, declarada edificio de Interés Patrimonial, como elemento central del conjunto, proponiendo la ordenación de los nuevos edificios entorno a ella y generando una sucesión de plazas de distintas jerarquías y usos, siendo la principal la que da frente al conjunto hacia Av. Pedro de Valdivia y que otorga la distancia necesaria para apreciar el conjunto.

 

edificio amberes norte

facultad de artes & teatro

Este edificio, recientemente inaugurado, se ubica en la esquina nor-poniente de la manzana, en la esquina de calle Amberes con Av. Pocuro y se levanta con un volumen que, si bien reconoce la materialidad y proporciones volumétricas de sus antecesores, supera su altura en dos pisos generando un plano de fondo al conjunto desde Av. Pedro de Valdivia, con una imagen neutral y homogénea en la que destaca el uso de la piedra, ya característica en las edificaciones de la Universidad.

Concebido como un gran contenedor de diversos programas, se reconocen tres grandes áreas programáticas:

La primera sección, bajo el nivel de terreno, da cabida al programa específico de la Escuela de Teatro, con una gran sala con capacidad para 300 personas, Salas de Ensayo, un Teatro de Cámara, programas anexos de servicios y amplias circulaciones que sirven como “foyer” a los diversos recintos, iluminadas naturalmente mediante lucarnas.

La segunda sección, a nivel de terreno, se compone por un volumen acristalado que contiene la Cafetería y que se proyecta a un gran patio exterior al oriente del edificio, conformado además por el edificio CIB y la Casa Vial, como un nuevo espacio de representación de carácter institucional.

Como tercera sección, a partir del segundo piso se desarrolla el programa de salas de clases, talleres y recintos administrativos complementarios, en un volumen de plantas libres que, siguiendo el modelo aplicado en los edificios anteriores, asegura la máxima flexibilidad.

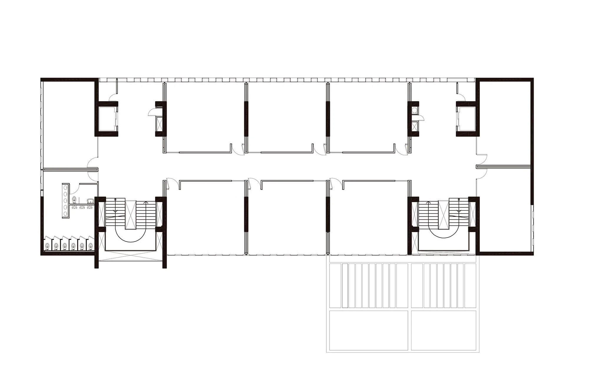
planos

Planta Primer Piso

Planta Segundo Piso

Elevaciones Norte y Sur

 


FICHA TÉCNICA

ARQUITECTOS Jorge Marsino P. / Claudio Santander L.
ARQUITECTOS COLABORADORES Jaime Fuentes D.
AÑO DE PROYECTO 2005 - 06
AÑO DE CONSTRUCCIÓN 2006 - 07
SUPERFICIE DE TERRENO 1.844,30 m2.
SUPERFICIE CONSTRUIDA 8.508,44 m2.
UBICACIÓN Pocuro N° 1935, Providencia, Santiago, Chile.
CLIENTE Universidad Finis Terrae.

 

ESPECIALISTAS
PROYECTO CÁLCULO Sergio Raby.
EMPRESA CONSTRUCTORA Empresa Constructora Sudamericana.
FOTOGRAFÍA Pedro Mutis Johnson.