taller fad
CAMPUS PEDRO DE VALDIVIA, universidad finis terrae, santiago, chile
2011
Encargo / Vínculo
El encargo del nuevo taller de herramientas para la facultad de Arquitectura y Diseño de la Universidad Finis Terrae, surge como una necesidad primaria de ampliación para dar cabida a un espacio de trabajo a los alumnos, que alberga una sala de alta tecnología, un gran taller de herramientas con un espacio central de doble altura para el manejo de maquinarias y maquetas a escala, un pañol de herramientas y recintos de bodegaje.
La solución va más allá del encargo inicial, haciéndose cargo de resolver preguntas no planteadas y expectativas no evidentes, proyectando no sólo el motivo del encargo, si no que además creando un edificio con valor agregado y valor en la arquitectura.
el encargo revelado
Con respecto a las condiciones formales, el nuevo edificio debía ocupar un volumen existente en subterráneo, que contaba con un espacio cerrado de pequeñas dimensiones y gran altura, mas una plaza hundida con gradería, que funcionaba a su vez como extensión del taller como anfiteatro abierto.
el encargo velado
Este volumen era un anexo exterior, ubicado al norte del edificio principal de la facultad, sin conexión con éste y en una situación de barrera entre el patio poniente y los estacionamientos al oriente, lo que generaba que la circulación exterior se diera por el patio sur del edificio, siendo compartida con la circulación vehicular. Este espacio generaba dos secciones inconexas ya que estaba ubicado al centro del predio, generando espacios residuales para la circulación de los alumnos entorno a él y dejándolo aislado con respecto al edificio principal.
Además, el edificio existente contaba con dos volúmenes que no contemplaban circulaciones que los vincularan en los niveles superiores, por lo que nace el concepto de puente conector entre el exterior y el edificios y entre los volúmenes del edificio traduciéndose a una gran plaza exterior.
Sin embargo, el principal desafío era construir un edificio que reflejara el valor de la arquitectura como imagen de diseño. Un desafío estructural y formal que representara a una escuela de arquitectos y diseñadores.
la estrategia
La principal estrategia frente a las variables de lo existente y la necesaria vinculación entre ambas partes del edificio, fue diseñar una estructura que diera cabida al encargo y además, actuara como un edificio puente que conectara lo ya existente. Una estructura capaz de soportar y soportarse a sí mismo, que diera lugar a actividades tanto interiores como exteriores en su cubierta y que además actúe como una gran plaza elevada rescatando el espacio perdido.
Se diseña un edificio contemporáneo, con carácter propio y autonomía funcional que caracteriza y da una nueva imagen e identidad a la facultad. Se Proyecta una estructura auto soportante, que responde a la necesidad de interconexión y circulaciones de los recintos existentes, que se despliega, ubica y adecua a lo ya existente.
el resultado
Consta de 3 niveles: un nivel zócalo existente, un primer nivel que se abalcona al subterráneo con una doble altura y una cubierta habitable. Es una sola estructura que se pliega y despliega en losas y muros de hormigón que cubre los recintos interiores que actúan como una planta libre, permitiendo flexibilidad en su uso y capacidad de transformación programática en el tiempo.
El proyecto se conecta peatonalmente con el edificio contiguo, a nivel de primer y segundo piso, por medio de puentes y una gran terraza capaz de generar un espacio abierto de exposición y encuentro. Las escaleras proyectadas funcionan como un anfiteatro hacia la facultad rescatando el valor del espacio que existía.
El Proyecto es el resultado de una exploración formal que se desarrolla bajo un marco de desarrollo proyectual resolviendo en primer lugar los requerimientos y necesidades del mandante, donde luego se incorporan las variables arquitectónicas que dan resultado finalmente a la imagen formal y al edificio construido.
ESQUEMAS DE PROCESO
Esquemas de Proceso
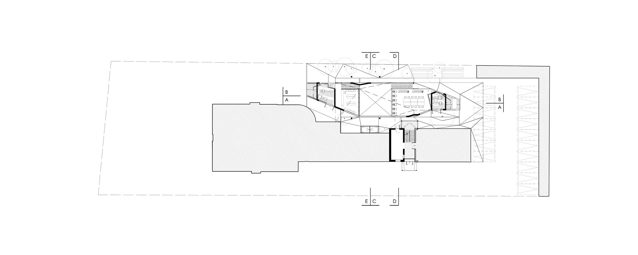
Planta Primer Piso
Planta Cubierta
Elevaciones Poniente y Oriente
FICHA TÉCNICA
ARQUITECTOS Jorge Marsino P. / María Inés Buzzoni G. / Claudio Santander L.
ARQUITECTOS COLABORADORES Francisca Valenzuela R.
AÑO DE PROYECTO 2010
AÑO DE CONSTRUCCIÓN 2010 - 11
SUPERFICIE DE TERRENO 3.200 m²
SUPERFICIE CONSTRUIDA EXISTENTE 1.976,68 m2
SUPERFICIE CONSTRUIDA 253,63 m2
UBICACIÓN Av. Pedro de Valdivia 1218
Comuna de Providencia, Región Metropolitana, Chile
CLIENTE Universidad Finis Terrae
ESPECIALISTAS
PROYECTO CÁLCULO Claudio Hinojosa T. | Hinojosa Ingeniería Asociados Ltda.
PROYECTO ILUMINACIÓN Oriana Ponzini G-H.
PROYECTO ELÉCTRICO Mario Pulleghini R. | Proacom Ltda.
FOTOGRAFÍA | Felipe Diaz C.
EMPRESA CONSTRUCTORA Constructora Valle Alto Ltda.
INSPECCIÓN TÉCNICA Victor Fuentes.
 
                
               
                          
                         
                 
                 
                 
                